Jun 07, 2024 · Expert Testimony (OLT & TLAB), Residential Land Use Planning
Single Detached DwellingTorontoToronto Local Appeal Body
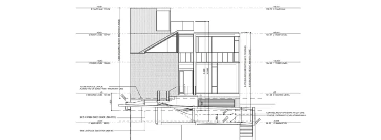
Design Plan Services Inc. was retained to provide expertise in obtaining approval for a new 3 storey single detached dwelling located next to a midrise building adjacent to Bllor Street W. Due to the unique site conditions, 21 variances were identified. Design Plan Services Inc. presented at the Committee of Adjustment and provided land use expert testimony at the Toronto Local Appeal Body. The application was approved by TLAB on January 25, 2023.