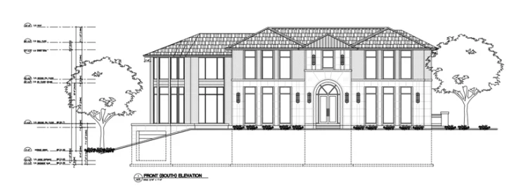
67 North Drive, Toronto

A minor variance application to permit construction of a new single detached dwelling with an attached garage. Design Plan Services Inc. was retained by the owner to work with City and obtain approval for 15 variances. The application was approved by the Toronto COA on May 11, 2023.

Our Team Is Standing By and Ready to Help!

Contact Us Today keyboard_double_arrow_right